Content on this page requires a newer version of Adobe Flash Player.

Get Adobe Flash player

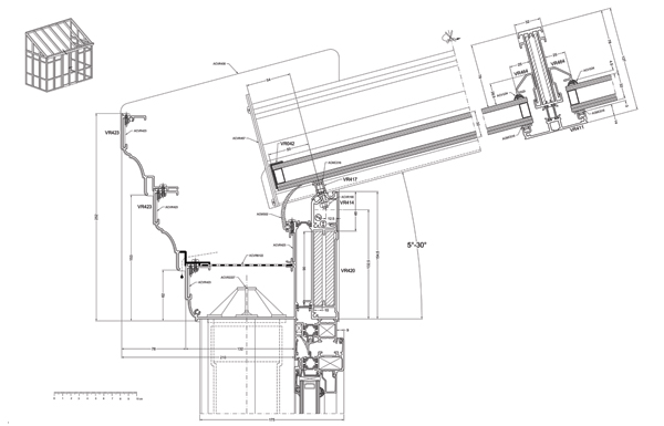
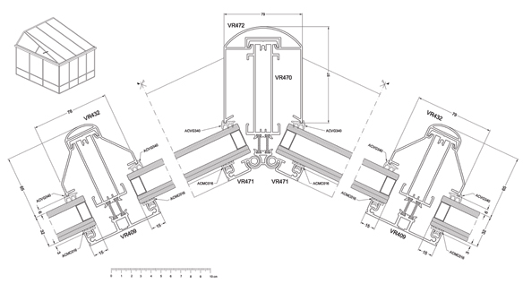
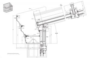
Aliver 400 (VR400)

 

CHARAKTERYSTYKA SYSTEMU
Izolowany termicznie system pozwalający na swobodne projektowanie skomplikowanych, niestandardowych kształtów przeszklonych zadaszeń. W systemie tym, element statyczny dachu umieszczony jest na zewnątrz tzn. powyżej wypełnienia. Dzięki temu, uzyskuje się gładką, wewnętrzną płaszczyznę połaci widoczną wewnątrz ogrodu. Istnieje możliwość stosowania różnych kątów nachylenia połaci w jednym zadaszeniu.

 

  

| STRONA GŁÓWNA | O FIRMIE | OFERTA | REALIZACJE | CERTYFIKATY | KONTAKT |

Partnerzy:

 
 

Torel © 2010 | realizacja KaMaG