Content on this page requires a newer version of Adobe Flash Player.

Get Adobe Flash player

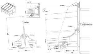
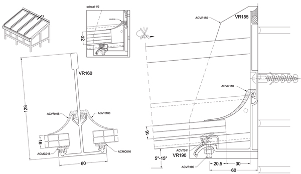
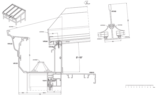
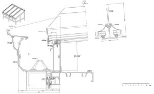
Aliver 100 (VR100)

 

CHARAKTERYSTYKA SYSTEMU 
Najprostszy system zadaszeń. System bez izolacji termicznej. Stosowany rodzaj krokwi - profil w kształcie odwórconej litery "T" /element nośny powyzej wypełnienia/. Mozliwe wypełnienia to: polwęglan komorowy lub szklenie szkłem pojedynczym.

 

 

 

| STRONA GŁÓWNA | O FIRMIE | OFERTA | REALIZACJE | CERTYFIKATY | KONTAKT |

Partnerzy:

 
 

Torel © 2010 | realizacja KaMaG