Content on this page requires a newer version of Adobe Flash Player.

Get Adobe Flash player

MC-Wall

CHARAKTERYSTYKA SYSTEMU
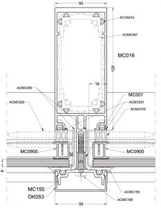
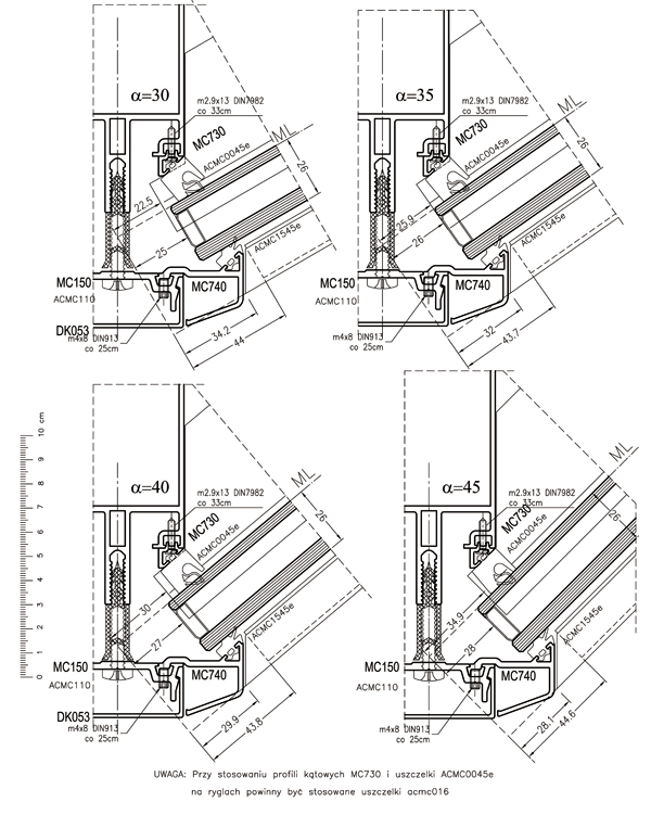
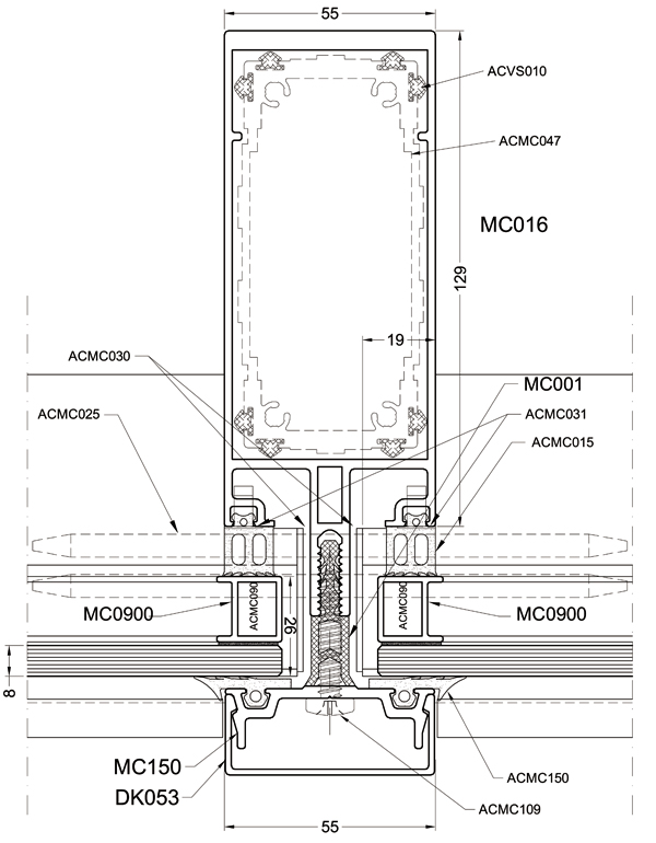
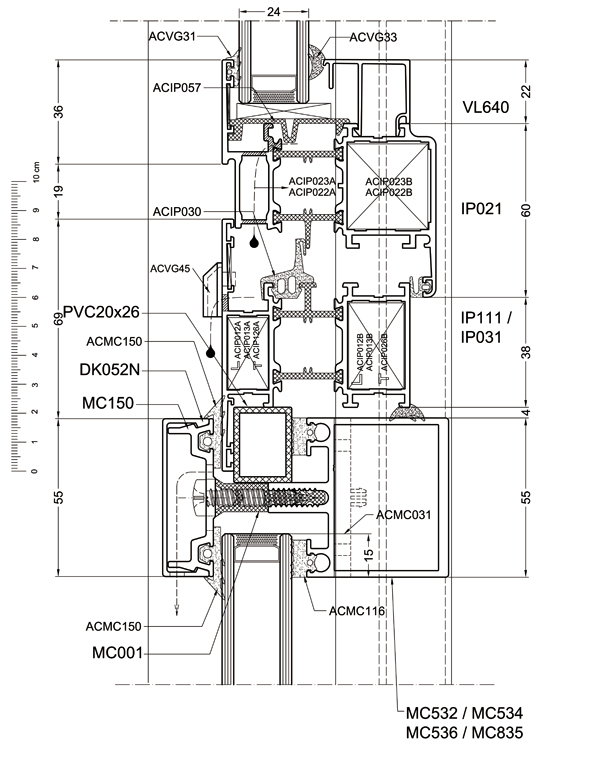
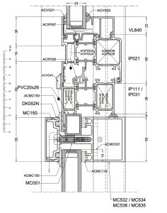
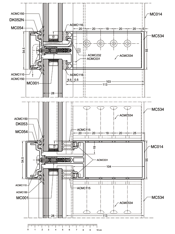
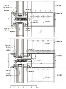
System lekkiej ściany osłonowej. Ściana osłonowa MC-Wall składa się z pionowych słupów i poziomych rygli połączonych ze sobą za pomocą trzpieni wykonanych ze stali nierdzewnej. 2 lub 3 łączniki Ø 6 ze stali nierdzewnej przypadające na jeden węzeł zapewniają bardzo wysoką nośność połączenia słup-rygiel, zarówno w płaszczyźnie oddziaływania parcia wiatru, jak i w płaszczyźnie obciążenia szybą. Nie koliduje to z możliwością zastosowania tradycyjnych wsporników rygli, bądź mocowania ich tylko za pomocą wkrętów od czoła. Rygle izolowane są poprzez przekładkę termiczną zaciskaną w firmie Aliplast na etapie produkcji profili. Eliminuje to możliwe do wystąpienia błędy wynikające z montażu przekładki termicznej na budowie. Rozwiązanie rygla zintegrowanego z przekładką termiczną znacznie przyśpiesza montaż ściany fasadowej. Dobór przekładki zależny jest od grubości wypełnienia w ścianie osłonowej. Możliwe do zastosowania grubości wypełnień to od 24 do 31 mm w przypadku rygli z zagniecioną przekładką termiczną, i do 42 mm w ryglach z odrębną przekładką termiczną. W miejscu montażu ściany, do słupów wstrzeliwany jest tworzywowy profil izolacyjny. Konstrukcja słupa jest zawsze tradycyjna: to znaczy przekładka termiczna, listwa zaciskowa i maskująca są odrębnymi elementami. Cała konstrukcja ściany osłonowej może być wykończona od zewnątrz różnego rodzaju listwami dekoracyjno – maskującymi o krawędziach zaokrąglonych tzw. „soft line” oraz listwami tradycyjnymi, o kształcie prostokątnym.

                        

                           

| STRONA GŁÓWNA | O FIRMIE | OFERTA | REALIZACJE | CERTYFIKATY | KONTAKT |

Partnerzy:

 
 

Torel © 2010 | realizacja KaMaG