| ALUMINIUM - System Aliplast |
| ALUMINIUM - System SAPA |
| PVC - System LB Profile |
| Systemy okienne |
| TWORZYWA SZTUCZNE |

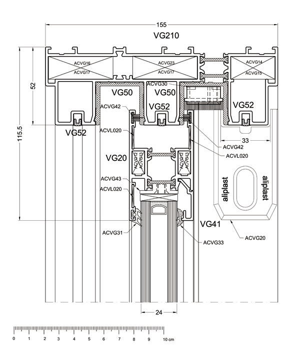
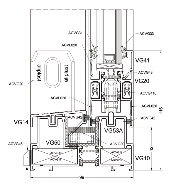
CHARAKTERYSTYKA SYSTEMU
System drzwi przesuwnych izolowanych termicznie. Wszystkie profile tego systemu są trójkomorowe. Szerokość ościeżnicy 99mm lub 155mm, szerokość skrzydła: 43mm. Zastosowanie dwu- i trójtorowych szyn jezdnych, po których przemieszczają się skrzydła, pozwala na otworzenie znacznych przestrzeni. Umieszczenie wózków pod elementami ruchomymi eliminuje niebezpieczeństwo obwieszania się drzwi. Możliwości stosowania wypełnień od 4 do 29mm. Możliwe kombinacje dwu, trzy, cztero i sześcioelementowe na bazie ościeżnicy dwu- lub trójtorowej.
ZASTOSOWANIE
- zbudowa tarasów, werand, ogrodów zimowych
- patio
Partnerzy: |
||||||||
Torel © 2010 | realizacja KaMaG |
||||||||