Content on this page requires a newer version of Adobe Flash Player.

Get Adobe Flash player

MC-Glass

 

CHARAKTERYSYKA SYSTEMU
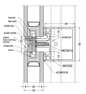
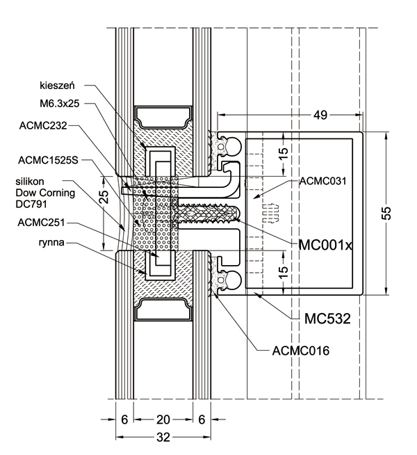
Odmiana ściany osłonowej bez widocznych zewnętrznych elementów aluminiowych. Od zewnątrz widoczne są jedynie wypełnienia szklane oddzielone od siebie szczelinami silikonu konstrukcyjnego. W pakietach szklanych wyprofilowane są specjalne kieszenie i rynny, w które trafiają płytki montażowe za pomocą których wypełnienia mocowane są do szkieletu ściany osłonowej.

 

          

| STRONA GŁÓWNA | O FIRMIE | OFERTA | REALIZACJE | CERTYFIKATY | KONTAKT |

Partnerzy:

 
 

Torel © 2010 | realizacja KaMaG